水戸市で建売住宅を購入したい方|おしゃれな和風の建売実例・費用相場・失敗しない選び方を解説
※本コラムは、広く一般的な情報提供を目的としており、弊社のサービスに限らず、多くの方にとって役立つ内容を意識して執筆しています。
詳細なご相談や専門的なアドバイスが必要な場合は、ぜひお気軽にお問い合わせください。
水戸市で建売住宅を購入したい方の中には、「同じようなデザインばかりで理想の住まいが見つからない」「購入前に注意点や選び方を知っておきたい」と感じている方も多いのではないでしょうか。
そこで今回は、茨城県全域で和の伝統美と現代的な暮らしやすさを両立させた住まいを提案している『ノーブルホーム粋(SUI)』が、「水戸市のおしゃれな建売住宅の実例や価格帯」「失敗しない選び方」まで詳しく解説します。
購入後の暮らしや、資産価値まで見据えた住まい選びの参考に、ぜひ最後までごらんください。
目次
水戸市の建売住宅|購入前に知っておきたい基礎知識

水戸市で建売住宅を検討する際には、地域の気候や敷地条件に合う住宅を選ぶことが大切です。
長く安心して暮らすために、どのような住宅がおすすめなのかを見ていきましょう。
水戸市で建売住宅を選ぶなら和風建築がおすすめ
水戸市で建売住宅を考えるなら、和風建築がおすすめです。
その理由は、主に以下のとおりです。
- 四季の寒暖差や湿度に強い
- 広い敷地と相性が良い
- 暮らしの幅を広げやすい
和風建築は、深い軒や縁側が夏の強い日差しを和らげ、畳が湿気を吸収することで一年を通じて快適に過ごせます。
さらに、水戸市周辺では比較的ゆとりを持った敷地を確保しやすいため、庭付きの平屋や2階建てを実現しやすいのも大きな魅力です。
庭と縁側をつなげれば、お子さまの遊び場や家庭菜園として活用でき、暮らしがより豊かになります。
このように、和風建築は水戸市の気候や生活スタイルに合い、「快適さ」と「暮らしやすさ」を両立できる住まいなのです。
建売住宅・注文住宅で人気の和風建築スタイル
水戸市で選ばれる建売住宅や注文住宅の中でも、和風建築にはいくつかのスタイルがあります。
- 和風スタイル:畳や障子を取り入れた落ち着いた雰囲気の家。伝統的で安心感がある
- 純和風スタイル:床の間や広縁などを備えた本格的な造りで、格式の高さを感じられる
- 和モダンスタイル:現代的なデザインに畳や木材を組み合わせた人気スタイル。快適さとデザイン性を両立できる
- 古民家風スタイル:梁や土壁など昔ながらの素材感を活かし、趣を感じられる
- 日本家屋・屋敷風スタイル:広い敷地にゆとりを持って建てる重厚な住宅。存在感が際立つ
これらのスタイルはそれぞれに魅力があり、水戸の風土や暮らし方に合わせて選ぶことで、より満足度の高い住まいが実現できます。
建売住宅でも注文住宅でも「和風建築の方向性」を知っておくことが失敗しない家づくりにつながるのです。
水戸市のおしゃれな建売住宅の実例|和風の外観・内装

「建売住宅はどれも同じに見える」と思われがちですが、実際には個性の光る住まいも存在します。
和の趣を取り入れながら現代的な快適さも備えた、おしゃれな実例をごらんください。
外観
こちらは、木格子と黒い外壁が際立つ、和の趣とモダンなデザインを融合させた住宅です。
ビルトインガレージは車を雨風から守り、庭木や植栽は街並みに映えるアクセントになります。

アプローチをライトアップすることで夜の美しさを引き立てると同時に、足元の安全性も確保しました。
建売住宅でありながら、個性と上質感のある一邸です。

〈関連ページ〉環を描く和の家
こちらは、格子と土壁風の外観に深い軒を組み合わせた、日本家屋を思わせる建売住宅です。

重厚な木製扉が住まいの品格を引き立て、外塀や庭木と調和して落ち着いた雰囲気を演出します。
現代の快適性を備えながらも伝統美を大切にした一邸は、日常に上質な時間をもたらしてくれます。

〈関連ページ〉和の家
内装
こちらは、深みのある木目と間接照明が織りなす、落ち着いた大人の雰囲気が漂う建売住宅の内装です。

段差を活かしたダイニングや中庭への抜け感が奥行きを与え、おしゃれな和の趣をつくり出しました。
建売住宅とは思えない、高級旅館のような上質な住まいを実現しています。

〈関連ページ〉環を描く和の家
こちらは、木の温もりと和のしつらえが調和した心地よい、建売住宅の内装です。
大開口から中庭を望むリビングは、格子天井や塗り壁が趣を添え、高級感と落ち着いた雰囲気を演出しています。

ダイニングと一体となるキッチンはシンプルかつ機能的で、洗練された暮らしを叶える設計です。
建売住宅でありながら「和の心」を大切にした住まいです。

〈関連ページ〉和の家
紹介した『環を描く和の家』は好評につき、販売終了となりました。
『和の家』は現在も引き続き販売中です。
水戸市のモデルルーム『和の家』の詳細は、こちらのページをご確認ください。
水戸市・つくばみらい市など茨城県の和風建築の間取り実例

建売住宅といっても、暮らしやすさを考えた間取りは千差万別です。
実際の建売住宅・注文住宅の間取り例を通じて、理想の住まいを具体的にイメージしてみましょう。
建売住宅
こちらは、【延床面積約35坪】の建売住宅の間取りです。
1階は20.5帖の広々としたLDKを中心に、大きな窓からウッドデッキへとつながる開放感を演出しています。
水回りの動線も効率的で、日々の暮らしが快適に進みます。
2階には主寝室と個室を配置し、ご家族の成長やライフスタイルに合わせて使い分けることが可能です。
ウォークインクローゼットや納戸が充実しているので、収納にも困りません。
バルコニーからは光と風を取り込むこともでき、心地よい住環境を支えます。


〈関連ページ〉和の家
注文住宅
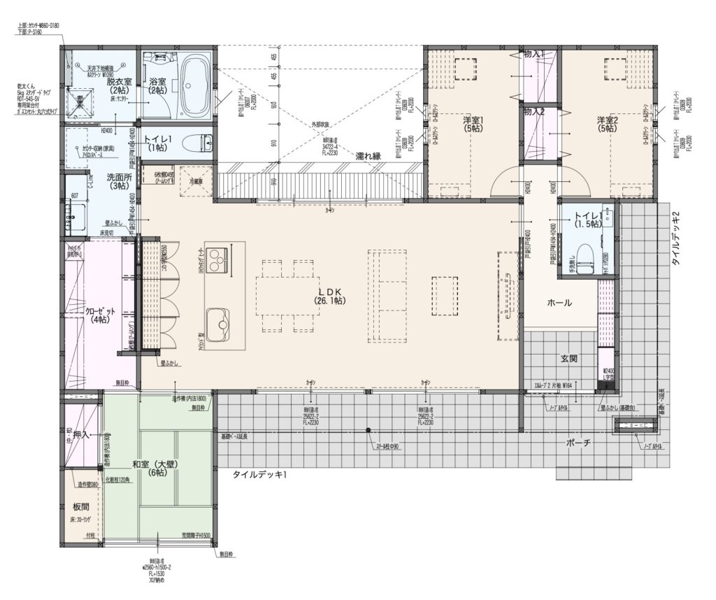
こちらは、【延床面積約33坪】注文住宅の平屋の間取りです。
ご家族が自然と集まる広々としたLDKは和室とつながり、タイルデッキに面しているため開放感も抜群です。
洋室2部屋と大容量の収納も備え、日常生活にゆとりをもたらします。

こちらは、【延床面積約36坪】注文住宅の2階建ての間取りです。
1階はLDKと畳コーナーを中心に、書斎や土間を備え、機能的で暮らしやすい設計になっています。
2階に水回りを集約することで1階の自由度を高め、憧れの暮らしを実現する住まいになりました。


建売住宅と注文住宅には、それぞれに違った良さがあります。
注文住宅と建売住宅のどちらがいいかについては、こちらの記事をご確認ください。
〈関連ページ〉注文住宅と建売どっちがいいかの答え|価格差・割合・向いている人から、後悔しない選び方を徹底解説
茨城県全域で理想の住まいをお探しの方は、ノーブルホーム粋(SUI)へご相談ください。
伝統美と現代的な快適さを備えた建売住宅から、自由設計の注文住宅まで幅広く対応しています。
ノーブルホーム粋(SUI)には、今回紹介しきれなかった実例がまだたくさんあります。ぜひごらんください。
水戸市の建売住宅の価格相場

2024年度の住宅金融支援機構『フラット35利用者調査』によると、茨城県全体の建売住宅の平均価格は約2,890万円、坪単価はおよそ90万円です(土地込み)。
一方、不動産ポータルサイトでは、水戸市や近隣エリアの建売住宅は2,400万〜2,900万円前後で多く販売されており、「和風スタイル」や「庭付き」といった物件も見られます。
価格は立地や広さ、仕様によって変動しますが、和風建築は素材や意匠にこだわる分、やや高めになりやすいのが特徴です。
ただし、補助金制度を活用すれば費用を抑えることも可能です。
水戸市は土地価格が安定しており、郊外なら広めの敷地も確保しやすいため、庭付き住宅を検討しやすい地域といえます。
水戸市で使える補助金の詳細は、こちらの記事をご確認ください。
〈関連ページ〉【2025年】水戸市の住宅補助金まとめ|新築・リフォーム・引っ越しで使える制度を紹介
〈参考〉
・住宅金融支援機構『フラット35利用者調査>2024年度集計表』
・アットホーム『不動産・住宅トップ>一戸建て>一戸建て・分譲住宅の価格相場>茨城県>水戸市の一戸建て・分譲住宅価格相場』
水戸市の魅力

ここからは、暮らしやすさ・自然や文化・交通アクセス・土地価格の4つの視点から、水戸市の魅力を紹介します。
行政・医療が充実した県央の中心地
水戸市は茨城県の県庁所在地として、行政機関や総合病院が集中しています。
安心して暮らせる環境が整っており、教育や医療へのアクセスも良好です。
子育て世代からシニア世代まで、幅広い層に暮らしやすい街として支持されています。
自然と文化が共存する街
偕楽園や千波湖といった豊かな自然に恵まれ、四季折々の美しい景色を楽しめます。
また、歴史的な街並みや文化施設も多く、日々の暮らしに彩りと豊かさをもたらしてくれます。
交通アクセスの利便性
水戸市は交通アクセスも良好です。
JR常磐線を利用すれば上野・東京方面へ、常磐自動車道を使えば都心や周辺地域へスムーズに移動できます。
通勤・通学はもちろん、週末のレジャーや旅行にも便利です。
安定した土地価格
首都圏と比較して土地価格が安定しており、広めの敷地を確保しやすいのが特徴です。
庭付きの建売住宅も検討しやすく、理想のマイホームを実現しやすい点が魅力です。
茨城県の移住支援情報
茨城県では、東京23区に在住または通勤していた方を対象に、住宅取得支援が用意されています。
- 単身世帯:最大60万円
- 世帯:最大100万円+お子さま1人につき最大100万円
このほか、引っ越し費用の補助など実用的なサポートのある自治体もあります。
制度内容や条件は市町村ごとに異なるため、窓口で最新情報を確認して賢く活用しましょう。
茨城県への移住についての詳細は、こちらの記事をご確認ください。
〈関連ページ〉茨城県移住のリアル|人気エリアと失敗しない選び方、支援制度まとめ
〈参考〉茨城県『わくわく茨城生活実現事業(茨城県移住支援金)』
水戸市で建売住宅を選ぶなら施工会社選びが重要

水戸市で長く快適に暮らせるマイホームを手に入れるには、信頼できる施工会社選びが最も重要です。
施工会社には、主に工務店とハウスメーカーがあります。
それぞれの特徴を理解し、ご希望に合っているかを見極めましょう。
工務店とハウスメーカーの違いを比較
工務店とハウスメーカーには、それぞれの特徴や良さがあります。
その違いは、主に以下のとおりです。
| 項目 | 工務店 | ハウスメーカー |
|---|---|---|
| 提案力 | 地域や敷地に合わせて柔軟な間取りや仕様の調整が可能 | 規格プランが豊富で、入居までの流れがスムーズ |
| 価格 | 工務店の規模によって価格が上下することもある | 標準仕様が多く、価格が安定しやすい |
| 保証・アフター | 地域密着で対応が身近だが、内容は会社ごとに異なる | 全国規模のサポート体制で保証内容が充実 |
| 施工精度 | 職人の技術力に依存しやすい | 品質管理が徹底されていて仕上がりが安定 |
「自分の暮らしに合うのはどちらか」を見極めながら、総合的に判断することが重要です。
ノーブルホーム粋(SUI)は双方の良さを両立
ノーブルホーム粋(SUI)は、工務店とハウスメーカーの強みをあわせ持つ建売住宅を提供しています。
- 画一的でない設計:建売住宅でも一邸ごとに工夫された間取りや性能を実現
- 地域密着のサポート:定期点検や保証が充実しており、購入後も安心
- 洗練されたデザイン:ハウスメーカーならではの完成度の高い外観・内装
- 安定した施工体制:品質管理が徹底され、仕上がりの精度に期待できる
ノーブルホーム粋(SUI)の建売住宅は「個性あるデザイン」と「安心感」を同時に叶えられるのが特徴です。
水戸市で和風建築や和モダン住宅を購入したい方にとって、心強いパートナーとなるはずです。
水戸市で和風の建売住宅を探すならノーブルホーム粋(SUI)へ
ノーブルホーム粋(SUI)の建売住宅は、伝統的な和の趣を大切にしつつ、断熱性や耐震性など、現代の暮らしに欠かせない高い住宅性能も兼ね備えています。
水戸にあるモデルルームでは、実際の家の空間や雰囲気を体感することが可能です。
入居後の暮らしを具体的にイメージできるため、家選びの大きなヒントになります。
また、資金計画や補助金の活用に関する相談も一貫してサポートしており、初めて家を購入する方も安心して任せられます。
水戸市で和風の建売住宅をお考えの方は、ぜひノーブルホーム粋(SUI)のモデルルームを訪れてみてください。
思い描く理想の暮らしが、具体的にイメージできます。
建売住宅の購入でよくあるQ&A

建売住宅を検討するとき、多くの方が似通った疑問を持たれます。
ここでは、特に相談が多い3つの質問を取り上げて解説します。
Q1.和風住宅のデメリットは何ですか?
A.和風住宅は木材や自然素材を多く使うため、一般的な建売住宅より価格が高めになりやすいです。
また、定期的なメンテナンスが必要になる場合もあります。
ただし、高性能建材やデザインを工夫した建売住宅も増えており、維持管理の負担は軽減されています。
Q2.平屋と2階建てでは、どちらが安いですか?
A.平屋の方が土地代や基礎・屋根の費用がかさむため、一般的には同じ延床面積なら2階建てのほうが安価になる傾向にあります。
ただし、バリアフリー性や暮らしやすさを重視して平屋を選ぶ方も多く、将来のライフスタイルに合わせた判断が大切です。
Q3.和モダンはなぜ人気なの?
A.和モダンは「和の落ち着き」と「現代的な快適性」をあわせ持つのが魅力です。
畳や障子などの伝統的な要素を残しつつ、開放感のある間取りや高性能な設備を取り入れることで、おしゃれで暮らしやすい住宅を実現できます。
省エネ性やメンテナンス性にも優れるため、幅広い世代に人気が高まっています。
まとめ
今回は、水戸市で建売住宅を購入したい方に向けて、実例や価格帯、購入時のポイントを解説しました。
建売住宅は画一的なデザインと思われがちですが、ハウスメーカーによってはデザイン性や機能性に優れた住まいを選ぶことも可能です。
本記事が、水戸市で理想の建売住宅を見つけ、ご家族が安心して新生活を始めるための参考になれば幸いです。

