シンプルモダンな平屋の外観と間取り実例|おしゃれに見せる設計ポイントと失敗しないコツ
※本コラムは、広く一般的な情報提供を目的としており、弊社のサービスに限らず、多くの方にとって役立つ内容を意識して執筆しています。
詳細なご相談や専門的なアドバイスが必要な場合は、ぜひお気軽にお問い合わせください。
シンプルモダンな平屋は、すっきりとした見た目と落ち着いた雰囲気が魅力で、多くの方が憧れる住まいのスタイルです。
一方で、「のっぺりした外観にならないか」「シンプルすぎて安っぽく見えないか」と不安を感じる声も少なくありません。
そこで今回は、茨城県でデザイン性の高い高性能な平屋住宅を多く手がける『ノーブルホーム粋(SUI)』が、シンプルモダン平屋の外観実例や間取り事例を紹介しながら、後悔しやすい失敗ポイントや依頼先の選び方を解説します。
理想の暮らしに合う「上質でシンプルモダンな平屋」を実現したい方は、ぜひ最後までごらんください。
目次
シンプルモダンな平屋が人気の理由

シンプルモダンな平屋は、近年多くの世代から支持を集めています。
その背景には、現代のライフスタイルにフィットする高い機能性と、長く住み続けられる普遍的な魅力があります。
シンプルモダンな平屋の特徴
シンプルモダンな平屋の最大の特徴は、「引き算の美学」です。
装飾を極力省き、必要な要素だけを残すことで洗練された空間を生み出す考え方です。
外観デザインでは、水平・垂直を基調とした直線的なラインが基本となります。
色使いも控えめで、白・黒・グレーなど3色以内に絞るのが一般的です。
「余計なものを削ぎ落とす」姿勢こそが、シンプルモダンの本質です。
和モダンな平屋との違い
「シンプルモダン」と「和モダン」は混同されやすいですが、そのルーツと表現方法は明確に異なります。
違いを整理すると、目指す空間の方向性がはっきりします。
| 項目 | シンプルモダン | 和モダン |
|---|---|---|
| 素材の方向性 | 無機質で均一な質感 (塗り壁・金属・タイルなど) | 自然素材の風合いを活かす (木・左官・石など) |
| デザインの考え方 | 要素を削ぎ落とし、形とラインで見せる | 素材感や陰影で雰囲気をつくる |
| 意匠の扱い | 装飾は最小限 | 格子・軒・和の意匠を現代的に再解釈 |
| 印象 | クールで都会的、シャープ | 温かみと落ち着き、情緒を感じる |
和モダンは日本の伝統的な要素を「活かす」方向性なのに対し、シンプルモダンは要素を「削る」ことで美しさをつくるスタイルです。
より直線的で、シャープな印象が特徴です。
シンプルモダンな平屋が支持される背景
シンプルモダンが時代を問わず支持される背景には、流行に左右されない「普遍性」があります。
- 景観へのなじみやすさ
- 古さを感じさせない飽きのこないデザイン
- ライフスタイルの変化に合わせられる汎用性の高さ
これは住宅の資産価値を維持しやすいという点でも、大きなメリットだといえます。
シンプルモダンな平屋の外観|おしゃれな事例9選と設計ポイント

シンプルモダンな平屋の外観は、形・色・素材の整え方によって印象が大きく変わります。
ここでは実際のノーブルホーム粋(SUI)の施工事例をもとに、おしゃれに見えるポイントがどこにあるのかをわかりやすく紹介します。
水平ラインが美しいシンプルモダンな平屋
こちらは、外壁のラインを水平にそろえ、建物全体に安定感を持たせた外観です。
軒・屋根・開口部の高さを統一することで視覚的なノイズが消え、落ち着いた印象にまとまっています。

【おしゃれに見えるポイント】
平屋は屋根や窓の位置などのラインがズレると目立ちやすい傾向があるため、水平ラインを意識的にそろえるのがおすすめです。
視線の流れが整って外観のスタイルが際立ち、全体に統一感が生まれます。
〈関連ページ〉ドッグランのある中庭と土間動線を備えた、ペットと暮らす家
濃色外壁と開口部で軽さをつくるシンプルモダンな平屋
こちらは、濃い外壁をベースに大きな開口部を組み合わせ、重厚さと開放感を同時に持たせた外観です。
壁の面積を広く取りながらガラス面で抜けをつくることで、圧迫感のないバランスに整えています。

【おしゃれに見えるポイント】
暗い色の外観は重く見えやすいため、視線が抜ける開口部を設けると軽やかさが生まれます。
〈関連ページ〉“木の魔法”に包まれた平屋
凹凸を抑え、面構成で整えたシンプルモダンな平屋
白い塗り壁で外観の面を整え、凹凸を最小限に抑えた構成です。
建物の形そのものを主役にし、光の当たり方で表情をつくることで、静かで上質な印象に整えています。

【おしゃれに見えるポイント】
面が連続する外観は、光の移ろいによって時間帯ごとの陰影がやわらかく現れ、形の美しさが際立ちます。
〈関連ページ〉モルタル床と薪ストーブのある、感性で紡いだ平屋。
格子で縦の印象を整えたシンプルモダンな平屋
正面に縦格子を配置し、視線をやわらかく遮りながらアクセントにした事例です。
壁面をシンプルに保つことで、格子のラインが際立つ外観になりました。

【おしゃれに見えるポイント】
縦方向のラインが加わると、外観にリズムを生み出すことが可能です。
壁面を整理したうえで部分的に要素を足すと、すっきり感を保ちながら表情のあるデザインにまとまります。
〈関連ページ〉雨も風情になる、鎖樋が印象的な和の平屋
深い軒で上質なたたずまいを感じるシンプルモダンな平屋
屋根の軒を深く出し、建物全体に落ち着いた重心を持たせた外観です。
外壁の色味を抑えることで、軒がつくる陰影がより際立つ構成です。

【おしゃれに見えるポイント】
深い軒は壁面にやわらかな影を落とし、外観に自然な立体感を生みます。
色数を抑えた外観ほど光と影の変化が感じられ、静かで上質な印象につながります。
〈関連ページ〉オーダー収納家具と素材にこだわった平屋
軒の深い家の外観については、こちらの記事もご確認ください。
〈関連ページ〉軒の深い二階建ての家・平屋の外観|モダンでおしゃれな外観デザインのポイント、メリット・デメリットを解説
色数を抑えて形を引き立てたシンプルモダンな平屋
外壁を一色でまとめ、建物の形そのものが印象に残る構成です。
玄関ドアを隠した壁部分もシンプルにまとめ、余白を活かした外観に整えました。

【おしゃれに見えるポイント】
色数が少ない外観は情報量が整理され、建物のフォルムが際立ちます。
〈関連ページ〉街並みのアイコンとなるシンボリックなコの字の平屋
植栽と外構を最小限に整えたシンプルモダンな平屋
アースカラーの塗り壁に、コンクリートや砂利などで外構をシンプルに組み合わせた事例です。
建物の色数や素材感を抑え、外まわりも含めて統一することで、全体に整った印象を与えています。

【おしゃれに見えるポイント】
素材や色味を限定することで要素同士の主張が抑えられ、建物そのもののラインが際立ちます。
〈関連ページ〉格子と造作キッチンで木を感じるコの字の平屋
高窓がリズムを生む重厚でシンプルモダンな平屋
こちらは、高窓の配置や凹凸のある形によって、外観にリズムをもたらしている事例です。
重厚なシルエットの中に、洗練された品格と軽やかな開放感を感じられます。

【おしゃれに見えるポイント】
高さの異なる窓があっても、ラインがそろうとスッキリとした印象に仕上がります。
〈関連ページ〉小上がり和室と格子のある伸びやかな平屋
煙突がアクセントの情緒あるシンプルモダンな平屋
深いブラウンの外壁に薪ストーブの煙突が溶け込み、どこか懐かしくも「洗練されたモダンなたたずまい」を感じさせる事例です。
深い軒下とウッドデッキが室内外をゆるやかにつなぎ、奥行きのある表情を生み出しています。

【おしゃれに見えるポイント】
色数を絞ったシックな装いだからこそ、時間帯で変化する光や影がアクセントとなり、上質なシンプルモダンを完成させます。
〈関連ページ〉薪ストーブのある平屋
茨城県でのおしゃれな平屋暮らしについては、こちらの記事をご確認ください。
〈関連ページ〉茨城県でおしゃれな平屋暮らしを叶える|中古住宅の注意点と費用を抑えるコツを紹介
シンプルモダンな平屋の間取り事例5選|おしゃれな空間設計の考え方

平屋の心地よさを最大限に引き出すためには、ライフスタイルに合った間取りであることも重要です。
おしゃれで暮らしやすい空間設計のポイントを、厳選した間取り事例とともに見ていきましょう。
畳スペースがLDKと一体になった平屋の間取り|延床面積約31坪
こちらは、リビングの中央に戸のない畳スペースを設け、空間にゆるやかな変化を持たせた間取りです。
段差や仕切りがないことで視線が広がり、ご家族がそれぞれの過ごし方をしながら同じ空間を共有できます。

個室ゾーンとLDKを分けたメリハリのある間取り|延床面積約32坪
こちらは、LDKと寝室エリアをゆるやかに分け、生活空間にメリハリを持たせた間取りです。
ご家族が集まる時間と、静かに過ごす時間を切り替えやすい住まいになっています。

LDK中心にご家族が集まる平屋の間取り|延床面積約36坪
こちらは、大きなLDKを中心に、ご家族の気配が自然に感じられる間取りです。
生活動線が短く、どこにいても過ごしやすい住まいになっています。
小屋裏収納を設けたことで、居住スペースをたっぷりと確保できています。


大空間LDKとウッドデッキがつながる平屋の間取り|延床面積約36坪
26帖を超える大空間LDKを中心に、ウッドデッキへつながる開放的な動線とプライベート性を両立した贅沢な平屋です。
各部屋を効率的に配置することで、シンプルながらも機能美を極めた間取りを実現しています。

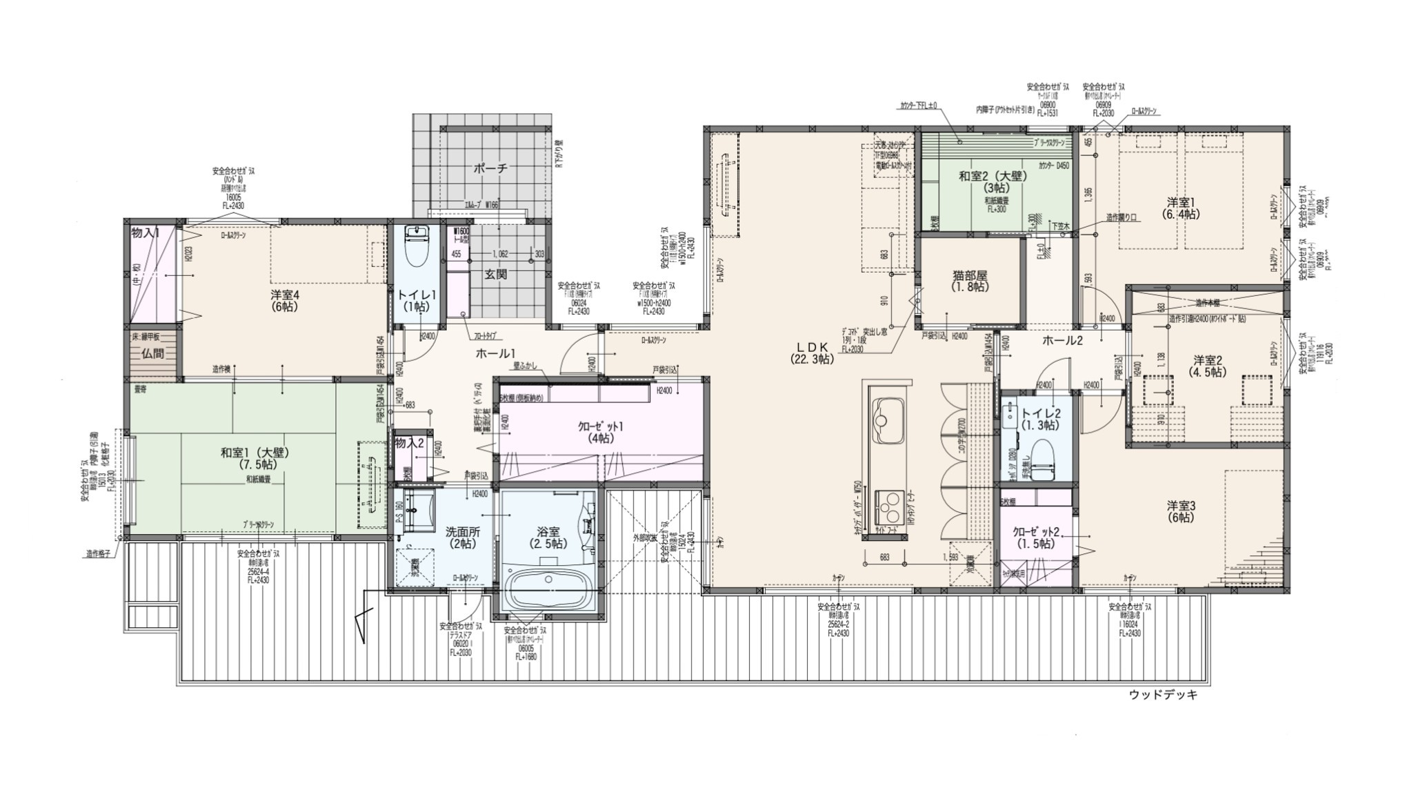
愛猫との暮らしを楽しむ広々とした平屋の間取り|延床面積約40坪
LDKを中心に愛猫のための専用スペースや複数の和室を設けた、ご家族全員が心地よく過ごせるプランです。
広大なウッドデッキへアクセスしやすい設計で、平屋ならではの開放感と庭との一体感を味わえます。

リビングから続くウッドデッキの事例は、こちらの記事をご確認ください。
〈関連ページ〉リビング続きのおしゃれなウッドデッキ事例|繋がりをフラット・段差ありにする場合のメリット・デメリット
茨城県でシンプルモダンな平屋づくりを検討中の方は、ノーブルホーム粋(SUI)にお問い合わせください。
洗練されたデザイン力と設計力で、長く愛せる住まいづくりを丁寧にサポートいたします。
ノーブルホーム粋(SUI)には、今回紹介しきれなかった事例がまだたくさんあります。ぜひごらんください。
平屋の外観で失敗しやすい注意点と対策

シンプルモダンな平屋は魅力的ですが、設計段階で見落としがちなポイントがあります。
実際に住み始めてから「こんなはずじゃなかった」と後悔しないために、よくある失敗例と対策を知っておきましょう。
のっぺり見える問題は「影」で解決
シンプルモダンを意識しすぎて装飾を削りすぎると、外壁が単調で「のっぺり」とした印象になりがちです。
何も対策をしないと、せっかくの注文住宅が味気ない雰囲気になってしまうこともあります。
これを防ぐには、軒を深く出したり、壁面に凹凸を設けたりして、太陽光による自然な「影」をつくる立体感を意識することが大切です。
暑さ・寒さは断熱性能と窓配置のセットで防ぐ
平屋は屋根面積が大きく、2階建てに比べて屋根からの熱の影響を受けやすい構造です。
また、広い空間を確保しようと大きな窓を設置しすぎると、外気の影響を強く受けて光熱費が上がる原因にもなります。
建物の断熱性能を高めるのはもちろん、周囲の環境に合わせた適切な窓の配置が欠かせません。
暗さ問題は中庭・高い位置の窓で採光を確保
外観デザインやプライバシーを重視して窓を減らすと、室内が想像以上に暗く感じることがあります。
平屋は屋根面が広い分、採光の取り方を誤ると昼間でも照明が必要になってしまいます。
暗さを解消するには、中庭を設けて採光できる面を増やしたり、高い位置に窓を設置したりする工夫が効果的です。
動線の長さは廊下レス設計で短縮
すべての部屋をワンフロアに配置するため、平面的な距離が長くなり、家事動線が非効率になるケースがあります。
廊下を極力なくした間取りや、生活シーンを想定した回遊性の高い設計が解決の鍵となります。
メンテナンスコストは素材選びで差が出る
平屋は外壁や屋根の面積が広くなるため、素材によっては将来的な補修費用がかさみやすくなります。
たとえば、汚れが目立ちやすい仕上げ材や、定期的な塗装が必要な外装材は、メンテナンスの手間が増える可能性があります。
外観デザインと性能・維持管理のバランスを取るには、経験豊富なプロへの相談が重要です。
茨城県で平屋ならではの美学と機能性を両立させたい方は、ノーブルホーム粋(SUI)に問い合わせください。
最新のモデルハウスや邸宅見学会をとおして、写真だけではわからない快適さを体感していただけます。
シンプルモダンと和モダンな平屋、どちらが向いているかを比較

シンプルモダンと和モダンは、どちらもモダンスタイルの平屋として人気がありますが、目指す方向性が異なります。
選ぶ基準は「好み」ではなく「暮らし方」です。
あなたのライフスタイルに合った選択をするために、両者の違いを整理しておきましょう。
| 項目 | シンプルモダン向きの人 | 和モダン向きの人 |
|---|---|---|
| 生活習慣 | 効率を重視し、無駄のない動線を好む | 季節の移ろいや情緒を大切にしたい |
| 片付け | 持ち物を厳選し、常に整頓された状態を保ちたい | ある程度の生活感も含めて楽しみたい |
| 素材の好み | タイルや金属など、経年変化の少ない素材が好き | 木や土壁など、時とともに味わいが増す素材が好き |
| 空間構成 | 広い壁面を活かしたギャラリーのような静寂を求める | 軒下や縁側など、外と内が曖昧につながる空間を好む |
| インテリア | モノトーンや直線的なデザイナーズ家具がなじむ | 職人の手仕事が感じられる民芸家具や工芸品がなじむ |
どちらが良い・悪いではなく、暮らしの軸がどこにあるかで向き不向きが分かれます。
ご家族の過ごし方を基準に選ぶと、完成後の満足度が高まりやすくなります。
ローコストでおしゃれな平屋実現は可能か|コスト配分の正解

平屋をおしゃれに仕上げたい一方で、予算とのバランスに悩む方は多いものです。
すべてを抑えようとすると見た目や住み心地に影響が出るため、「どこに費用をかけて、どこを調整するか」を考えることが大切になります。
- 費用をかけるべきポイント:外観の印象を左右する外壁や窓まわり、断熱や設備など暮らしやすさに直結する部分
- 調整しやすい項目:造作のデザインや設備のグレードなど
ただし、すべてを削る考え方は後悔につながりやすいため、見た目と快適性のバランスを意識することが重要です。
センスのいい外観の平屋を実現する相談先の選び方

平屋の外観は形だけでなく、素材の選び方や細部の納まりによって印象が大きく変わります。
見た目の良さも大切ですが、「素材の質感や組み合わせまで具体的に提案できるかどうか」が、完成度の差につながります。
また、図面上では分かりにくい部分をどこまで丁寧に整えられるかもポイントです。
設計力のある施工会社は、全体のバランスを見ながら細部まで配慮し、統一感のある外観に導きます。
茨城県で理想的なシンプルモダンな平屋を実現したい方は、ノーブルホーム粋(SUI)にお問い合わせください。
素材選びから設計まで一貫して提案し、落ち着きのある高級感を大切にした家づくりをサポートいたします。
まとめ
今回は、シンプルモダン平屋を上質に整えるための考え方や、外観・間取りのポイント、後悔しやすい注意点とその対策について、事例を交えながら解説しました。
すっきりとした印象と心地よい暮らしは、形や色だけでなく、空間全体のバランスを意識して整えることで初めて実現します。
理想とするシンプルモダンのイメージが広がり、納得のいく平屋づくりにつながれば幸いです。

