ホテルライクな家のデメリット|後悔しないためのコツを外観・内装・間取り事例を交えて解説
※本コラムは、広く一般的な情報提供を目的としており、弊社のサービスに限らず、多くの方にとって役立つ内容を意識して執筆しています。
詳細なご相談や専門的なアドバイスが必要な場合は、ぜひお気軽にお問い合わせください。
ホテルライクな家のデメリットは、見た目の美しさを優先しすぎると、「落ち着かない・片付かない・暮らしにくい」といった後悔につながりやすいことです。
長く心地よく暮らすためには、外観や内装の統一感に加えて、収納計画や動線、素材選びまで丁寧に整える視点が欠かせません。
そこで今回は、茨城県で上質で落ち着いた住まいを多く手がける『ノーブルホーム粋(SUI)』が、ホテルライクな家のデメリットを深掘りし、外観・内装・間取りで失敗を防ぐためのポイントを事例を交えて解説します。
見た目の美しさと暮らしやすさを両立した住まいを目指したい方は、ぜひ最後までごらんください。
目次
ホテルライクな家が人気|その理由を簡単に整理

憧れの住まいとして定番になりつつあるのが、ホテルライクな家です。
なぜこれほどまでに多くの人から選ばれているのか、まずは基本的な魅力と選ばれる理由を振り返ってみましょう。
ホテルライクとは「生活感を抑えた上質で統一感のある空間」
ホテルライクとは、ホテルの客室や共用スペースのように、生活感を抑えながら上質で統一感のある空間を目指したインテリア・住まいのスタイルです。
具体的には、色数を2〜3色程度に絞り、日用品や家電を視界に入れないよう整えることで、空間は一気に洗練されます。
豪華な装飾で飾り立てるというよりも、余白や静けさを大切にした空間づくりが特徴で、シンプルでありながら品のある雰囲気が魅力です。
人気の理由はリラックス感とデザイン性を両立しやすいから
多くの支持を集める理由は、高いデザイン性とリラックス感を同時に叶えられる点にあります。
帰宅したときに気持ちを切り替えやすく、日常の中でも少し特別な気分を味わえます。
ただし、見た目の美しさばかりを優先して実用性を忘れてしまうと、住んでからの後悔につながりやすいため注意しなければなりません。
ホテルライクな家のデメリット|建ててから後悔しやすいポイント

ホテルライクな家は見た目の美しさが魅力ですが、デザインにこだわるほど、事前に押さえておきたい注意点も増えます。
後悔を防ぐために、まずは気をつけたいポイントを確認しておきましょう。
建築費用やインテリア費用が高くなりやすい
ホテルライクな家は、一般的な住まいより費用がかかる傾向にあります。
空間をすっきり見せる工夫ほど部材の価格が上がり、施工の手間も増えるためです。
たとえば、以下のような要素はコストアップの原因になる一例です。
- 造作家具:既製品より設計・製作費がかかる
- 間接照明:配線計画や下地づくりの手間が増える
- タイルや石目調素材:材料費と施工費の両方がかかる
- ハイドア:建具そのものの価格が高くなる
さらに、完成後に空間の雰囲気をそろえようとして、ソファや照明、小物まで買い替えると、予算は想定以上に膨らみます。
ホテルライクな家は建物本体だけでなく、家具や照明まで含めて完成度が決まります。
そのため、長く過ごすリビングを優先して個室はシンプルにまとめるなど、どこに費用をかけるか優先順位を決めておくことが大切です。
収納不足や動線の悪さが暮らしにくさにつながる
見た目のすっきり感を優先するあまり、収納の量や配置が後回しになるのはホテルライクな家でよく起きる失敗のひとつです。
収納が足りないと日用品の置き場所に困り、物が出しっぱなしになって、せっかくのホテルライクな印象が損なわれてしまいます。
また、家事動線が悪い間取りでは、きれいな状態を保つこと自体が毎日の大きな負担になりかねません。
美しさを保つための維持管理まで考える必要がある
ホテルライクな空間は、汚れやホコリが目立ちやすいため、日々の掃除やメンテナンスの負担が大きくなる傾向があります。
たとえば、高級感を演出するガラスや鏡、艶のあるタイルは、指紋や水垢が少しついただけで美しさが半減してしまいます。
また、ホコリが目立ちやすいダークトーンの床材を採用する場合も同様です。
「きれいな状態を維持する手間」が、毎日の生活における物理的なストレスにならないか、設計段階でしっかり検討する必要があります。
なぜ「ダサい」「飽きる」「落ち着かない」家になってしまうのか

ホテルライクを目指して建てたはずなのに、住み始めてから違和感を覚えるケースは決して珍しくありません。
理想と現実のギャップを生み出してしまう背景には、いくつかの共通した原因があります。
「ダサい」と感じるのは家全体の統一感が取れていないから
空間が整って見えない大きな要因は、家全体のデザインの方向性がそろっていないことです。
一部の空間だけに高級な素材を取り入れても、外観や内装、家具のテイストがちぐはぐでは中途半端な印象を与えてしまいます。
おしゃれな空間をつくるには、あれこれ要素を加えるよりも、無駄を削ぎ落とすことと全体の統一感を重視することが欠かせないのです。
「飽きる」原因は流行の表面だけをなぞってしまうから
SNSやインテリア雑誌で見かけた流行のスタイルを表面的に取り入れるだけでは、数年後に「古く見える」家になりやすい傾向があります。
デザインのトレンドは移り変わるため、そのときだけの流行に乗りすぎると、後から古く感じることも少なくありません。
長く心地よく住み続けるために、流行よりも「時代を問わず美しく見えるか」という普遍性を意識することが大切です。
素材の質感や空間のバランスといった、本質的なデザインの要素を軸に据えましょう。
「落ち着かない」理由はくつろげる素材や余白が足りないから
「落ち着かない」と感じる根本的な理由には、空間が完璧すぎて人がくつろぐための「余白」がないことが挙げられます。
生活感を徹底的に排除し、隙のないデザインだけで構成された部屋は、汚してはいけないという心理的な圧迫感を生み出してしまいます。
住まいで安らぎを得るには、木や布のような素材感や、あえて何も置かない余白、やわらかな光の広がりなどを取り入れ、気持ちが休まる要素をつくりましょう。
茨城県で後悔しないホテルライクな家づくりを進めたい方は、ノーブルホーム粋(SUI)へお問い合わせください。
見た目の美しさだけでなく、落ち着きや暮らしやすさまで見据えた住まいづくりをご提案いたします。
ホテルライクな家は、モノトーンで無機質にまとめるだけが正解ではありません。
実は、木や畳など「和」の要素を取り入れると、ホテルライクの中にホッとする余白をつくりやすくなります。
和の要素を取り入れた落ち着きのあるテイストが気になる方は、こちらの記事も参考にしてみてください。
〈関連ページ〉和モダン×ホテルライクな家のつくり方|旅館みたいな家とは違う、非日常を設計で整える
後悔しないホテルライクな外観・内装のつくり方

理想の空間を実現するには、実際の成功例から学ぶことが近道です。
ここからは、ノーブルホーム粋(SUI)の施工事例を参考に、失敗しない空間づくりのポイントを解説します。
外観|直線美に木や植栽を添えて冷たさをやわらげる
ホテルライクな外観は、色数を抑えた直線的なデザインにすると、すっきりと洗練された印象をつくりやすくなります。
ただし、無機質に寄せすぎると冷たく見えやすいため、木目や植栽を加えてやわらかさを添えるのがおすすめです。
こちらは、スタイリッシュなダークトーンの外壁に、あたたかみのある木目や豊かな植栽を組み合わせた事例です。
広々としたウッドデッキや芝生の庭とつながる設計により、くつろぎ感も自然に演出されています。

〈関連ページ〉“木の魔法”に包まれた平屋
内装|色数を絞り、素材と照明で心地よさをつくる
ホテルライクな内装づくりは、色数を抑えながら、素材の質感や照明の当て方で上質さを整えることがポイントです。
華やかな装飾を増やすのではなく、木や塗り壁のようなやわらかさのある素材や、間接照明の穏やかな光を取り入れることで、落ち着いて過ごしやすい空間に仕上がります。
こちらは、間接照明で壁面にやわらかな陰影をつくり、落ち着いた色味と素材感で品格を演出した事例です。
光の見せ方を工夫することで、派手な装飾に頼らず、ホテルライクな品格を形にしています。

〈関連ページ〉環を描く和の家
こちらは、木の天井や庭とのつながりを感じられる、和モダンの空間を取り入れた事例です。
自然素材のやさしさを加えることで、ホテルライクでありながらも心が休まる内装に整えられています。

〈関連ページ〉和の家
後悔しないホテルライクな間取りの考え方

ホテルライクな家では、見た目の美しさだけでなく、片付けやすさや動きやすさまで含めて間取りを考えることが重要です。
ここでは、生活感を抑えつつ、開放感と心地よさを両立しやすい間取りの考え方を解説します。
回遊動線と隠す収納で美しさを保ちやすくする
ホテルライクな家は、空間そのものをおしゃれに整えるだけでは長続きしません。
生活感を抑えた状態を保つポイントは、日用品をしまいやすい収納計画と家事動線の工夫にあります。
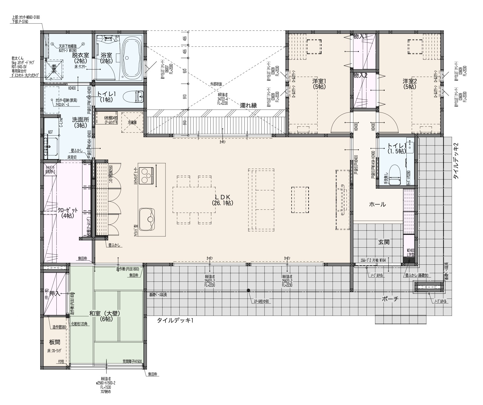
たとえばこちらの事例のように、玄関からパントリー、キッチンへと抜ける回遊動線を設けることで、買い物後の荷物もリビングを通らずに収納可能です。
適材適所に機能的な「隠す収納」を配置する設計は、生活のノイズが表に出るのを防ぎ、整った印象を長く保てます。

抜け感や余白を意識すると広さ以上の上質さを演出できる
ホテルライクな家を上質に見せるうえで重視すべきなのは、床面積そのものよりも、視線の抜けと外とのつながりです。
室内だけで完結させず、外へ視線が抜ける設計を取り入れると、空間に明確な広がりが生まれ、ホテルのような開放感をつくることが可能です。
たとえばこちらの事例のように、LDKにタイルデッキや縁側を隣接させれば、内と外が自然につながり、空間全体がより広く豊かなものに感じられます。
さらに、和室のような落ち着いた場所を添えることで、洗練された中に住まいとしての安らぎも残せます。

開放感のある住まいを目指したい方は、こちらの記事もぜひご確認ください。
〈関連ページ〉リビング続きのおしゃれなウッドデッキ事例|繋がりをフラット・段差ありにする場合のメリット・デメリット
ノーブルホーム粋(SUI)には、今回紹介しきれなかった事例がまだたくさんあります。ぜひごらんください。
茨城でホテルライクな家を叶えるならハウスメーカー選びが重要

ホテルライクな家で後悔しないためには、見た目の美しさだけでなく、日々の過ごしやすさまで見据えて提案してくれる会社を選ぶことが重要です。
ノーブルホーム粋(SUI)は、空間全体の完成度を大切にしながら、品格のある落ち着いた住まいづくりが得意なハウスメーカーです。
土間や坪庭、和モダンといった日本の美意識を取り入れた事例も豊富で、「ホテルライクだけど、どこか落ち着く」といった長く心地よく暮らせる家づくりを目指せます。
展示場見学や資料請求を通して、空間の心地よさを確認してみてください。
住宅会社選びに迷ってしまう方は、こちらの記事も参考になります。
〈関連ページ〉「ハウスメーカー選びに疲れた・楽しくない」を解消する方法、ハウスメーカーの選び方・断り方
茨城県で上質で落ち着けるホテルライクな家づくりをご検討中の方は、ノーブルホーム粋(SUI)へお問い合わせください。
理想のデザインだけでなく、暮らしやすさまで見据えた住まいづくりを丁寧にご提案いたします。
まとめ
今回は、ホテルライクな家のデメリットや、後悔しやすい原因、失敗を防ぐための考え方について、外観・内装・間取りのポイントを交えながら解説しました。
端正で洗練されたホテルライクな家は、見た目だけを整えるのではなく、動線や収納、素材、光の使い方まで含めたバランスを意識することで実現しやすくなります。
本記事が、ホテルライクな家で大切にしたい視点を整理し、「自分たちらしい住まい」を考えるきっかけになれば幸いです。

